Vesper
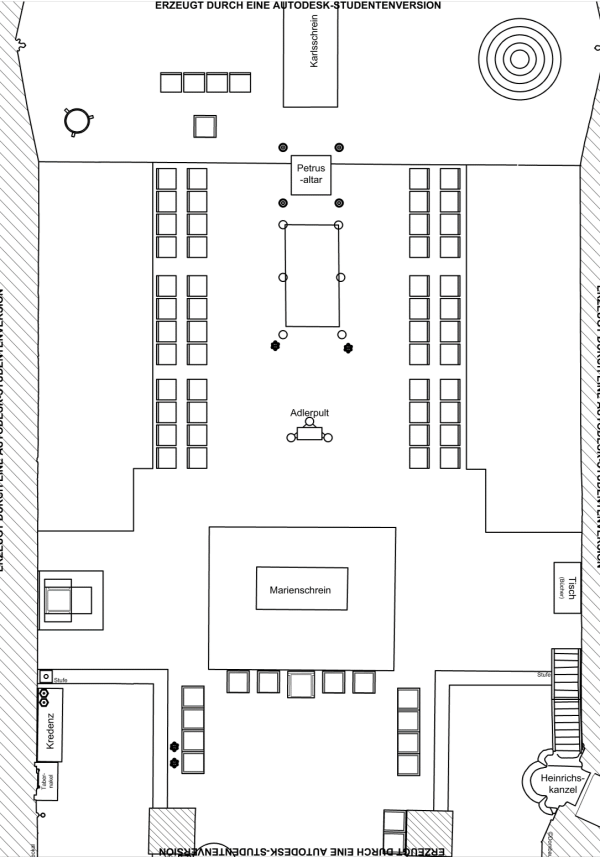
Skizzen
Für die Vesper ein erster Entwurf der Skizzen zur Übersicht. Sie wurden mit Hilfe dieser Powerpoint-Datei erstellt.
Übersicht
Vor Beginn werden die Leuchter mit den brennenden Kerzen auf die Kredenz am seitlichen Ambo gestellt. Schiffchen und Weihrauchfass mit glühenden Kohlen werden zum an den Ministrantensitzen bereitgestellten Ständer gebracht. Es sollte darauf geachtet werden, dass die Klingeln und das Funkmikro vor dem Ottograb liegen, dass für Offiziant und Ministranten Liedhefte bereitliegen und dass die Kordeln zwischen Ottograb und Petrusaltar entfernt sind.
Einzug
Kleiner Einzug ohne Weihrauch und Kerzen, vier Ministranten plus Offiziant; Aufstellung zwischen Marienschrein und Adlerpult mit Blickrichtung Adlerpult: zwei Ministranten rechts, zwei links, Offiziant in der Mitte; Reverenz; gemeinsamer Gang zu den Sitzen, Ministranten gehen vor.
Inzens
Zu Beginn des Antiphons des Magnificats erheben sich die Ministranten für den Weihrauch, nehmen Fass und Schiffchen, treten vor den Offizianten, der einlegt. Zu Beginn des Magnificats tritt der Offiziant an den Petrusaltar. Der Ministrant mit dem Weihrauchfass geht hinterher und übergibt dort das Fass. Während der Altarinzens geht der Ministrant mit und hält den Chormantel fest. Nach der Altarinzens erhält der Ministrant das Weihrauchfass zurück, der Offiziant geht zurück zum Priestersitz. Die Ministranten mit dem Weihrauch treten vor ihn (unterhalb der Stufe) und inzensieren ihn. Im Anschluss gehen die Ministranten mit dem Weihrauch in die Mitte der Chorhhalle zwischen Adlerpult und Ottograb und inzensieren von dort aus beide Seiten des Chorgestühls. Welche Seite zuerst inzensiert wird entscheidet sich nach der Rangfolge der anwesenden Domherren. Zuerst zu inzensieren ist die Seite, auf der der amtierende Bischof, wenn dieser nicht da ist der emeritierte Bischof und wenn dieser nicht da ist der nach Lebensjahren älteste Weihbischof sitzt. Die Altersreihenfolge der Weihbischöfe: Dicke, Reger, Borsch, Bündgens. Im Anschluss treten die Weihrauchministranten vor das Ottograb zu den Klingeln.
Aussetzung
Zum Ende der Wiederholung des Antiphons des Magnificats gehen die Ministranten für die Kerzen und der Offiziant zum Tabernakel. Der Offiziant befüllt die Monstrans, die Ministranten nehmen die Kerzen. Die Kerzen ziehen vor dem Allerheiligsten zum Petrusaltar und flankieren diesen rechts und links. Dafür muss ein Ministrant hinter dem Altar vorbeigehen.
Anbetung
Sobald das Allerheiligste abgestellt ist, gehen die Ministranten zu den Klingeln, knien sich hin und stellen die Kerzen ab.
Sobald der Offiziant da ist, wird stehend Weihrauch eingelegt und danach kniend durch den Offizianten inzensiert. Ein weiteres Mal wird während der ersten Strophe des Tantum Ergo stehend eingelegt. Während der zweiten Stufe wird kniend inzensiert. Während des sakramentalen Segens werden die Schellen durchgehend betätigt. Der Weihrauchfassträger inzensiert.
Auszug
Direkt nach dem sakramentalen Segen wird das Allerheiligste zurück zum Tabernakel gebracht. Dafür schwenken die Ministranten mit den Kerzen von ihrem Platz aus vor den Offizianten mit der Monstrans und begleiten vom Ottograb bis zum Tabernakel. Währenddessen gehen die Ministranten mit dem Weihrauch hinter den Adlerpult. Die Kerzen werden auf der Kredenz gelassen, Ministranten und Offiziant stellen sich zu den Weihrauchministranten. Offiziant steht innen, dann Weihrauch, dann Ministranten, die bisher die Kerzen hatten. Es wird ein Marienlied und ein Schlusslied gesungen, dann Reverenz, dann Auszug. Der Weihrauch geht vor.






